nieruchomości
Wypełnij formularz i kliknij SZUKAJ poniżej

Numer oferty
 
 
Lokalizacja
Ulica
Cena
Powierzchnia
Liczba pokoi
oferty specjalne

Notes » Zgłoś ofertę » Kalkulator opłat » Wirtualne spacery » O nas » Opinie techniczne » Świadectwo Ener. » Kontakt »

Szczegóły Oferty

obiekt ( sprzedaż )

437302

Numer:
437302
Miasto:
WISEŁKA
Cena:
1 890 000 PLN kalkulator
Cena za mkw:
15 475,31 PLN mkw
Powierzchnia:
122.13 m2
Rok budowy:
2020

Opis


SUPER OKAZJA !!! Inwestuj i zarabiaj cały rok.

Na sprzedaż gotowy wykończony obiekt z 4 apartamentami nad Morzem Bałtyckim w Wisełce. Idealny pod inwestycję.

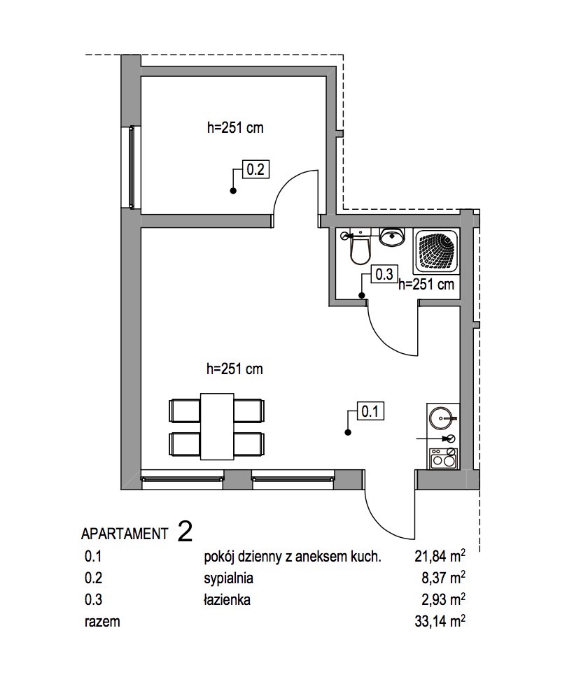
- powierzchnie apartamentów - 33,14m2, 33,14m2, 26,92m2, 28,93m2
- 2 pokoje w każdym apartamencie w pełni wyposażone
- ogrzewanie podłogowe
- taras/ogród
- 4 miejsca parkingowe na działce

Gotowiec inwestycyjny - 4 apartamenty gotowe na wynajem, w pełni wyposażone z miejscami parkingowymi na działce o powierzchni 568m2.
W każdym z apartamentów znajduje się w salonie kanapa, stolik kawowy, stół z czterema krzesłami, telewizor smart TV, w sypialni łóżko dwuosobowe, aneks kuchenny wyposażony w zabudowę szafek kuchennych, płytę grzewczą 2 - palnikową, lodówkę 60, oraz szafa dwudrzwiowa z lustrami. Ogrzewanie elektryczne podłogowe, jak również woda z pieca elektrycznego firmy Ariston sterowany zdalnie przez wi-fi. Meble ogrodowe oraz 4 miejsca parkingowe na działce.

W pobliżu jest pole golfowe w Kołczewie, punkty małej gastronomi. Jezioro Wisełka w odległości ok 500m od apartamentu, do morza spacerkiem 15 minut przez Woliński Park Narodowy.

Nie zwlekaj, zadzwoń i dowiedz się więcej.

Mapka nie odzwierciedla faktycznej lokalizacji.

Treść niniejszego ogłoszenia nie stanowi oferty handlowej w rozumieniu Kodeksu Cywilnego. Treść ma charakter informacyjny i zalecamy ich osobistą weryfikację. Kontaktując się z biurem Klient wyraża zgodę na przetwarzanie danych osobowych zgodnie z przepisami ustawy z dnia 29 sierpnia 1997 roku o ochronie danych osobowych / Dz.U.Nr. 133 poz. 883/. Klientowi przysługuje prawo do wglądu do swoich danych osobowych i ich aktualizacji.


 
FOCUS NIERUCHOMOŚCI KATARZYNA CHOROMAŃSKA OROWICZ
Cztery Pory Roku 12 5
71-806 Szczecin
tel.: 881640777
email: biuro@focus.nieruchomosci.pl
Wyślij ofertę na e-mail

Jeśli chcesz dostać tą ofertę w e-mailu,
podaj swój adres.
 
 

Prześlij wiadomość do naszej firmy
Imię i Nazwisko 
Telefon 
E-mail 
Treść zapytania 

Wyrażam zgodę na przetwarzanie moich danych osobowych przez firmę dla celów związanych z działalnością pośrednictwa w obrocie nieruchomościami, jednocześnie potwierdzam, iż zostałem poinformowany o tym, iż będę posiadać dostęp do treści swoich danych do ich edycji lub usunięcia.