nieruchomości
Wypełnij formularz i kliknij SZUKAJ poniżej

Numer oferty
 
 
Lokalizacja
Ulica
Cena
Powierzchnia
Liczba pokoi
oferty specjalne

Notes » Zgłoś ofertę » Kalkulator opłat » Wirtualne spacery » O nas » Opinie techniczne » Świadectwo Ener. » Kontakt »

Szczegóły Oferty

mieszkanie ( sprzedaż )

908548

Numer:
908548
Miasto:
ZAŁOM-KASZTANOWE, OS. KASZTANOWE
Cena:
589 000 PLN kalkulator
Cena za mkw:
8 759,67 PLN mkw
Powierzchnia:
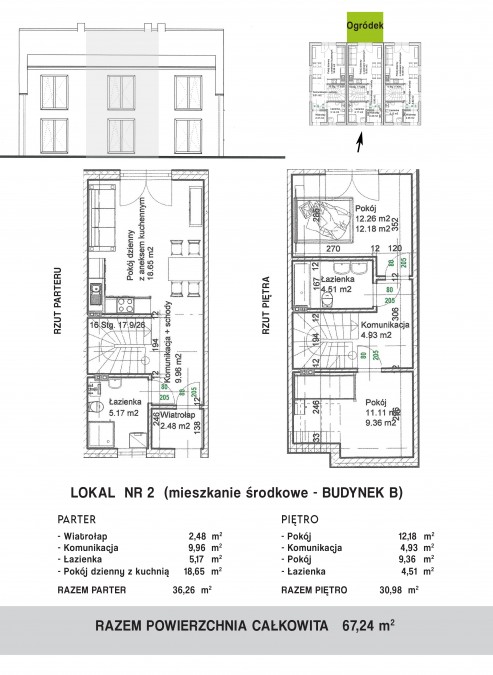
67.24 m2
Liczba pokoi:
3
Piętro:
0
Liczba pięter:
1
Rok budowy:
2025
Parking:
TAK
Kanalizacja:
TAK
Media - gaz:
TAK
Media - woda:
TAK

Opis


Przedmiotem oferty sprzedaży jest lokal mieszkalny na kameralnym osiedlu domów w zabudowie szeregowej w Załomiu (Załom Kasztanowe). Mieszkanie posiada dwa poziomy na pierwszym (parterze) znajduje się salon z aneksem kuchennym, łazienka, wiatrołap i hall, na drugim poziomie (I piętrze) 2 sypialnie, łazienka i przedpokój. Dodatkowo nad mieszkaniem znajduje się jeszcze powierzchnia, którą można zagospodarować na pomieszczenie gospodarcze. Do mieszkania przynależą dwa miejsca parkingowe przy budynku.
Atuty oferty dogodna lokalizacja dojazd do Szczecina komunikacją miejską (linie 77, C i inne), w pobliżu nowa wybudowana stacja SKM, obiekty użyteczności publicznej szkoła podstawowa, przedszkole, basen, apteka, dyskonty spożywcze i inne. W niedalekiej odległości Marina w Lubczynie i w Szczecinie Dąbiu.
Osiedle w trakcie realizacji.
Zainteresowanych klientów zapraszam do kontaktu.

 
FOCUS NIERUCHOMOŚCI KATARZYNA CHOROMAŃSKA OROWICZ
Cztery Pory Roku 12 5
71-806 Szczecin
tel.: 881640777
email: biuro@focus.nieruchomosci.pl
Wyślij ofertę na e-mail

Jeśli chcesz dostać tą ofertę w e-mailu,
podaj swój adres.
 
 

Prześlij wiadomość do naszej firmy
Imię i Nazwisko 
Telefon 
E-mail 
Treść zapytania 

Wyrażam zgodę na przetwarzanie moich danych osobowych przez firmę dla celów związanych z działalnością pośrednictwa w obrocie nieruchomościami, jednocześnie potwierdzam, iż zostałem poinformowany o tym, iż będę posiadać dostęp do treści swoich danych do ich edycji lub usunięcia.