nieruchomości
Wypełnij formularz i kliknij SZUKAJ poniżej

Numer oferty
 
 
Lokalizacja
Ulica
Cena
Powierzchnia
Liczba pokoi
oferty specjalne

Notes » Zgłoś ofertę » Kalkulator opłat » Wirtualne spacery » O nas » Opinie techniczne » Świadectwo Ener. » Kontakt »

Szczegóły Oferty

dom blizniak ( sprzedaż )

908513

Numer:
908513
Miasto:
SZCZECIN, WIELGOWO
Ulica:
STORCZYKOWA
Cena:
949 000 PLN kalkulator
Cena za mkw:
6 947,29 PLN mkw
Powierzchnia:
136.60 m2
Pow. działki:
300.00 m2
Liczba pokoi:
5
Rodzaj kuchni:
aneks
Rok budowy:
2025
Garaż:
TAK

Opis


Wielgowo ul. Storczykowa - Zamieszaj przy lesie

W najbliższym sąsiedztwie znajduje siępętla autobusowa z liniami nr 73,93,534, Szkoła podstawowa nr 13, Las, Sklepy spożywcze w tym Biedronka, PumpTrack.

Oddanie inwestycji do użytkowania IV Kwartał 2025.

Inwestycja obejmuje budowę 4 domów w zabudowie bliźniaczej na działce o powierzchni 1175m2.
Dostępne są 4 domy o różnej powierzchni ogródków ( od 277m2 do 321m2 ).

Parametry budowy
- Cegła Silikat
- Okna PCV
- Ogrzewanie podłogowe rozprowadzone na parterze i 1 piętrze
- Centralne ogrzewanie / Ciepła woda - Pompa ciepła
- Dach pokryty blachodachówką
- Więźba dachowa przygotowana pod fotowoltaikę
- Na 1 piętrze w pokojach zastosowane zostały pełnowymiarowe okna w lukarnach

Uzbrojenie
- Energia elektryczna
- Wodociąg gminny
- Kanalizacja gminna

Rzut parteru
- Powierzchnia użytkowa 72,66m2
- Taras 15,00m2
- Wiatrołap 3,48m2
- Salon + Aneks kuchenny 43,26m2
- Łazienka 6,26m2

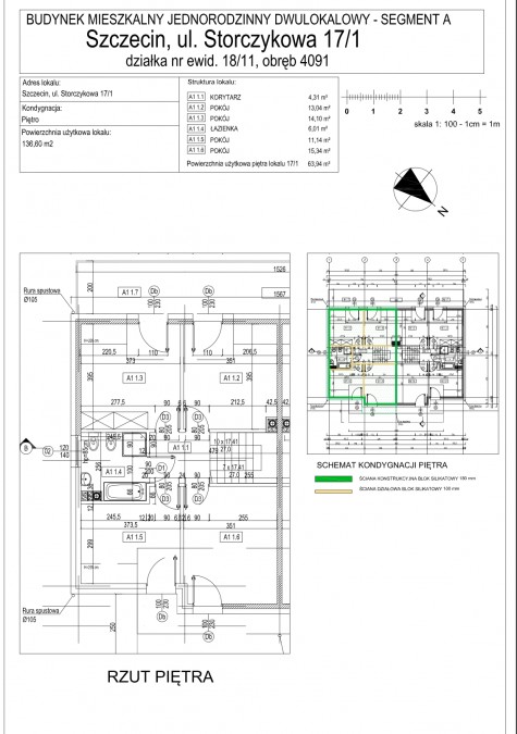
Rzut 1 Piętra
Powierzchnia użytkowa 63,94m2
- Holl 4,31m2
- Pokój 1 13,04m2
- Pokój 2 14,10m2
- Pokój 3 11,14m2
- Pokój 4 15,34m2
- łazienka 6,01m2

 
FOCUS NIERUCHOMOŚCI KATARZYNA CHOROMAŃSKA OROWICZ
Cztery Pory Roku 12 5
71-806 Szczecin
tel.: 881640777
email: biuro@focus.nieruchomosci.pl
Wyślij ofertę na e-mail

Jeśli chcesz dostać tą ofertę w e-mailu,
podaj swój adres.
 
 

Prześlij wiadomość do naszej firmy
Imię i Nazwisko 
Telefon 
E-mail 
Treść zapytania 

Wyrażam zgodę na przetwarzanie moich danych osobowych przez firmę dla celów związanych z działalnością pośrednictwa w obrocie nieruchomościami, jednocześnie potwierdzam, iż zostałem poinformowany o tym, iż będę posiadać dostęp do treści swoich danych do ich edycji lub usunięcia.