nieruchomości
Wypełnij formularz i kliknij SZUKAJ poniżej

Numer oferty
 
 
Lokalizacja
Ulica
Cena
Powierzchnia
Liczba pokoi
oferty specjalne

Notes » Zgłoś ofertę » Kalkulator opłat » Wirtualne spacery » O nas » Opinie techniczne » Świadectwo Ener. » Kontakt »

Szczegóły Oferty

działka ( sprzedaż )

908497

Numer:
908497
Miasto:
POGORZELICA
Ulica:
WOJSKA POLSKIEGO
Cena:
5 550 000 PLN kalkulator
Cena za mkw:
993,02 PLN mkw
Powierzchnia:
5589.00 m2
Droga dojazdowa:
asfaltowa

Opis


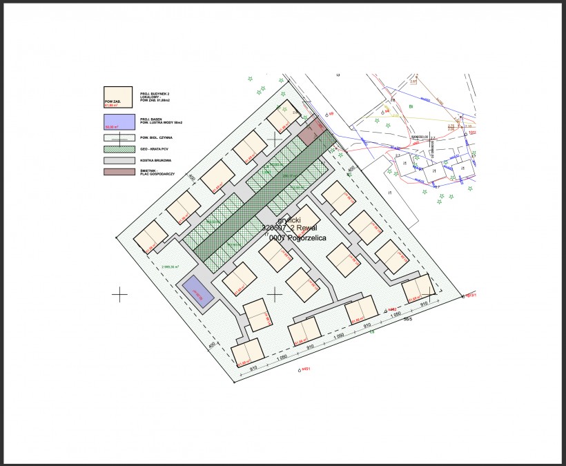
Pogorzelica ul. Wojska Polskiego - II Linia zabudowy

ISTNIEJE MOŻLIWOŚĆ ZABUDOWY 18 DOMAMI x 2 LOKALE 36 LOKALI ok. 53m2 PUM ok. 1900m2

Działka budowlana objęta Miejscowym Planem Zagospodarowania Przestrzennego.
Podział elementarny B.28-UTZ
- Powierzchnia zabudowy 15%
- Wskaźnik intensywności zabudowy 0,3
- Forma zabudowy wolnostojąca
- Wysokośćzabudowy do II kondygnacji, max 10,0m

Działka położona w środku lasu, tuż przy głównej drodze.

 
FOCUS NIERUCHOMOŚCI KATARZYNA CHOROMAŃSKA OROWICZ
Cztery Pory Roku 12 5
71-806 Szczecin
tel.: 881640777
email: biuro@focus.nieruchomosci.pl
Wyślij ofertę na e-mail

Jeśli chcesz dostać tą ofertę w e-mailu,
podaj swój adres.
 
 

Prześlij wiadomość do naszej firmy
Imię i Nazwisko 
Telefon 
E-mail 
Treść zapytania 

Wyrażam zgodę na przetwarzanie moich danych osobowych przez firmę dla celów związanych z działalnością pośrednictwa w obrocie nieruchomościami, jednocześnie potwierdzam, iż zostałem poinformowany o tym, iż będę posiadać dostęp do treści swoich danych do ich edycji lub usunięcia.