|   Wypełnij formularz i kliknij SZUKAJ poniżej Notes » Zgłoś ofertę » Kalkulator opłat » Wirtualne spacery » O nas » Opinie techniczne » Świadectwo Ener. » Kontakt » | 908403Numer: 908403 Miasto: ŚWINOUJŚCIE Ulica: ZDROJOWA Cena: 1 820 000 PLN
                
                kalkulator
                
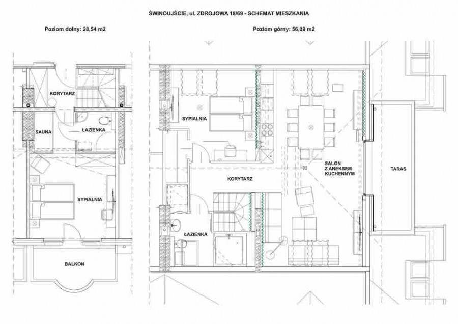
             Cena za mkw: 21 505,38 PLN mkw Powierzchnia: 84.63 m2 Liczba pokoi: 3 Piętro: 4 Liczba pięter: 5 Rodzaj kuchni: aneks Rok budowy: 2014 Telefon: TAK Internet: TAK TV kablowa: TAK Winda: TAK Kanalizacja: TAK Media - woda: TAK Opis!! SAUNA W MIESZKANIU !! ul. Zdrojowa - 350m do Morza. Mieszkanie - Istnieje możliwość sfinansowania zakupu kredytem hipotecznym ! Mieszkanie było wynajmowane - Posiada bardzo dobre opinie! Istnieje możliwośćkontynuowania inwestycji. Mieszkanie 3-pokojowe, II-Poziomowe, zlokalizowane na 3 i 4 piętrze w budynku na kameralnym osiedlu. Mieszkanie jest w pełni wykończone oraz wyposażone - Gotowe do zamieszkania. I Poziom 28,54m2 - Holl - Sauna - Łazienka - Sypialnia - Balkon II Poziom 56,09m2 - Holl - Sypialnia - Łazienka - Salon z aneksem kuchennym - Taras Istnieje możliwość zakupu ,miejsca postojowego w hali garażowej na terenie inwestycji. Zacisze Parku Zdrojowego, sąsiedztwo Medical Spa Świnoujście, niewielka odległość od promenady i plaży czynią to miejsce wprost idealnym do wypoczynku i rekreacji. Teren jest chroniony i atrakcyjnie zagospodarowany, z placem zabaw i fontanną. Możliwość parkowania pojazdów zapewniają miejsca postojowe zlokalizowane na zewnątrz oraz w podziemnym garażu wielostanowiskowym. Inwestycja zlokalizowana jest zaledwie 350 m od piaszczystej plaży w bliskim sąsiedztwie nadmorskiej promenady. Od południa graniczy z Parkiem Zdrojowym, zespołem leśnym o dużych walorach krajobrazowych. FOCUS NIERUCHOMOŚCI KATARZYNA CHOROMAŃSKA OROWICZ Cztery Pory Roku 12 5 71-806 Szczecin tel.: 881640777 email: biuro@focus.nieruchomosci.pl |